Meise
Exclusieve woonkans in het groene Meise
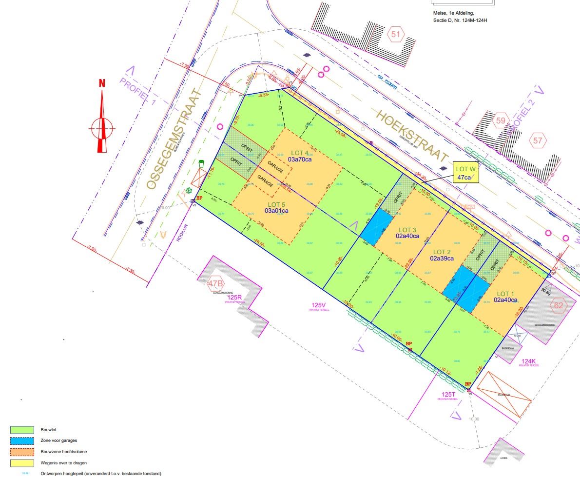
In het landelijke en gegeerde Meise werd een vergunning verkregen voor een hoogwaardige verkaveling van 5 halfopen bebouwingen. Elk perceel biedt de perfecte basis voor een comfortabele en hedendaagse woning, met aandacht voor ruimte, licht en privacy.
Dankzij de aanwezigheid van een te slopen hoeve komen de toekomstige woningen in aanmerking voor het verlaagde btw-tarief, wat deze investering extra aantrekkelijk maakt.
De locatie is een absolute troef: op slechts 5 km van de Brusselse ring, vlak bij de A12, geniet u van een vlotte bereikbaarheid zonder in te boeten aan rust en groen. Meise combineert een landelijk karakter met alle moderne faciliteiten zoals scholen, winkels en openbaar vervoer, in een aangename Vlaamse gemeente met een sterke woonkwaliteit.
Een unieke kans voor wie rustig wil wonen met de stad binnen handbereik.
De verkoop zal opgestart worden midden januari









